Gallery   |   Floorplan    |     Video Tour    |     Map

A two-bedroom maisonette in Vanguard Close, well positioned in close proximity to West Croydon station (Title number: SGL536826)


FOR SALE BY AUCTION: To be sold by public auction on the owners' instruction. A two-bedroom maisonette in Vanguard Close, Croydon. Ideal for investors. To be sold via online bidding on Friday, 30 June 2023.

Auctioneer's comments:'This Lot offers the buyer a great opportunity to buy a spacious maisonette close to the town centre and within easy reach of local amenities'.

Auction date
The property is to be sold by public auction on Friday 30 June 2023 via a 2-hour online bidding window.

Description
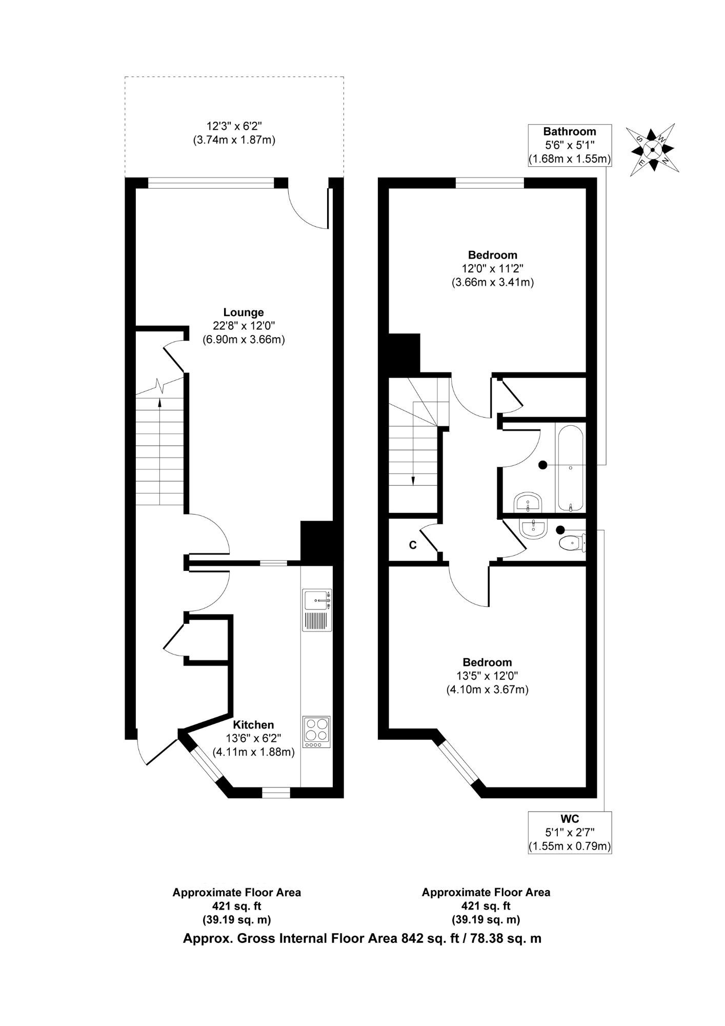
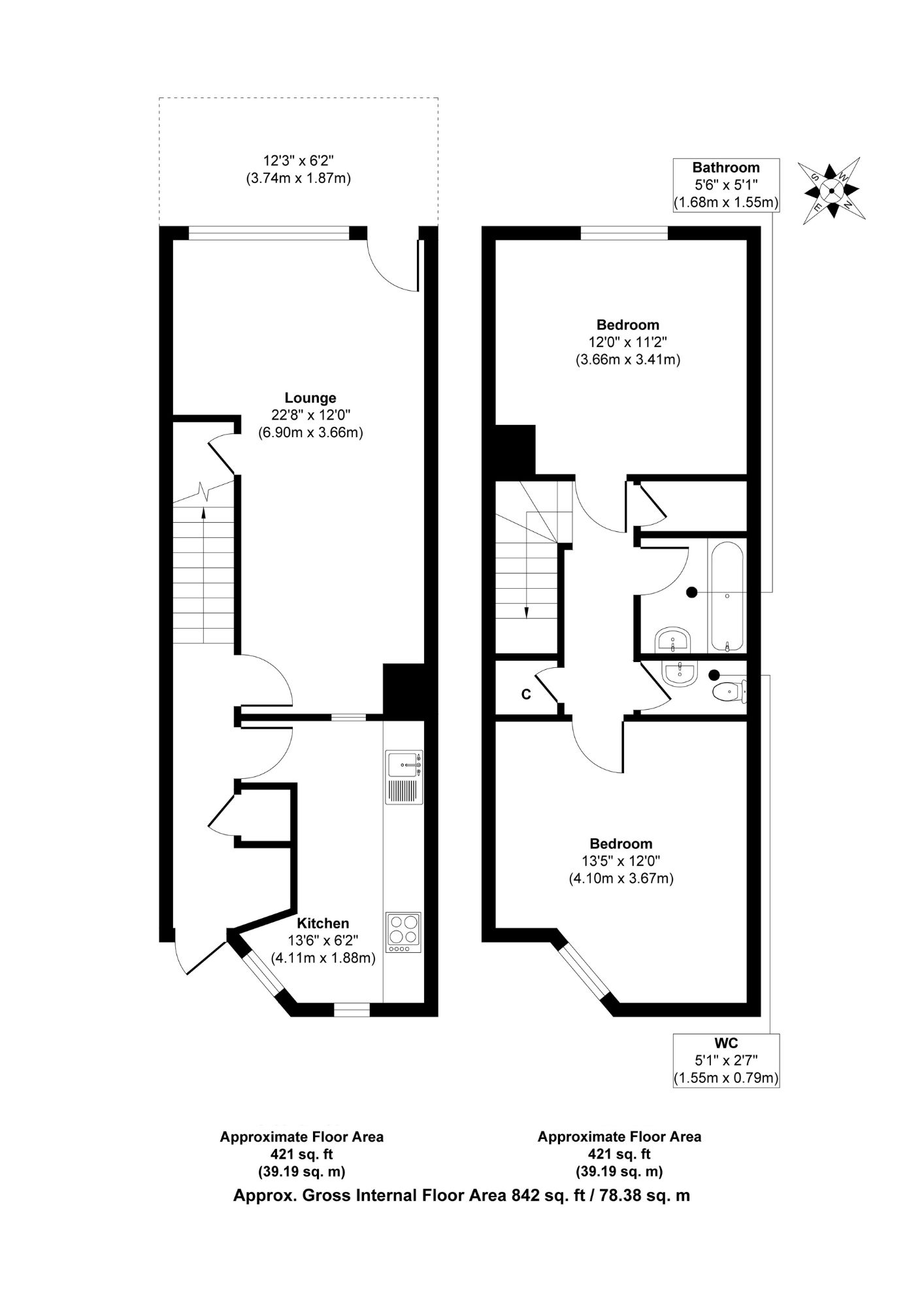
2 Bedroom maisonette, leasehold, approximately 842 SQFT

Location
Vanguard Close, Croydon, 0.3 miles to West Croydon train station.

Accommodation
First floor: Reception with balcony, and kitchen
Second floor: 2 Bedrooms and bathroom

Outside
Communal garden

EPC rating
To be confirmed

Tenure
Leasehold
Term: 125 years from 14 August 1985

Local authority and council tax band
London Borough of Croydon
Council tax band: A

Pre-auction bids
To make a pre-auction bid, you must be an approved bidder. Once you have set up your online bidding account, verified your ID and paid the security deposit, you can email the amount you would like to bid. The common auction conditions and special conditions apply to all pre-auction bids, and no conditions will be acceptable. Should your pre-auction bid be accepted, you will need to immediately pay the balance of the 10% deposit (min. £5,000) and all auction fees listed. The Auctioneer reserves the right to refuse any bid.

Auction fees
In addition to the 10% deposit (min. £5,000) of your winning bid, you must pay an auction buying commission of 1.75% plus VAT (min. fee of £1,750 plus VAT) of the purchase price and auction buying fee of £1,900 plus VAT. Please be aware that additional fees may be payable on completion, including disbursements in the legal pack. Check the legal pack for each lot you are interested in before bidding.

* Generally speaking Guide Prices are provided as an indication of each seller's minimum expectation, i.e. 'The Reserve'. They are not necessarily figures which a property will sell for and may change at any time prior to the auction. Virtually every property will be offered subject to a Reserve (a figure below which the Auctioneer cannot sell the property during the auction) which we expect will be set within the Guide Range or no more than 10% above a single figure Guide.

Lot 67 - 10 Vanguard Close, Croydon, Surrey, CR0 3RE

Unconditional Online Auction Sale
Guide Price* £160,000

Loading the bidding panel...

Joint Agent

James Chiltern

Agreement Documents

Additional Documents

Related Documents

Virtual Tour

Lot 67 - Video Tour

Make an Enquiry

Submit an enquiry and someone will be in contact shortly.

 
*  
*  
*
*
*

Share

More Properties View more

Lot 129 | End Time -

66D Norfolk Road, Littlehampton, West Sussex, BN17 5HB

Guide Price*:   £50,000
Lot 128 | End Time -

Flat 14, 386 London Road, Croydon, London, CR0 2SU

Guide Price*:   £140,000
Lot 130 | End Time -

87 Ashington Grove, Coventry, West Midlands, CV3 4DD

Guide Price*:   £280,000