Gallery   |   Floorplan    |     Video Tour    |     Map

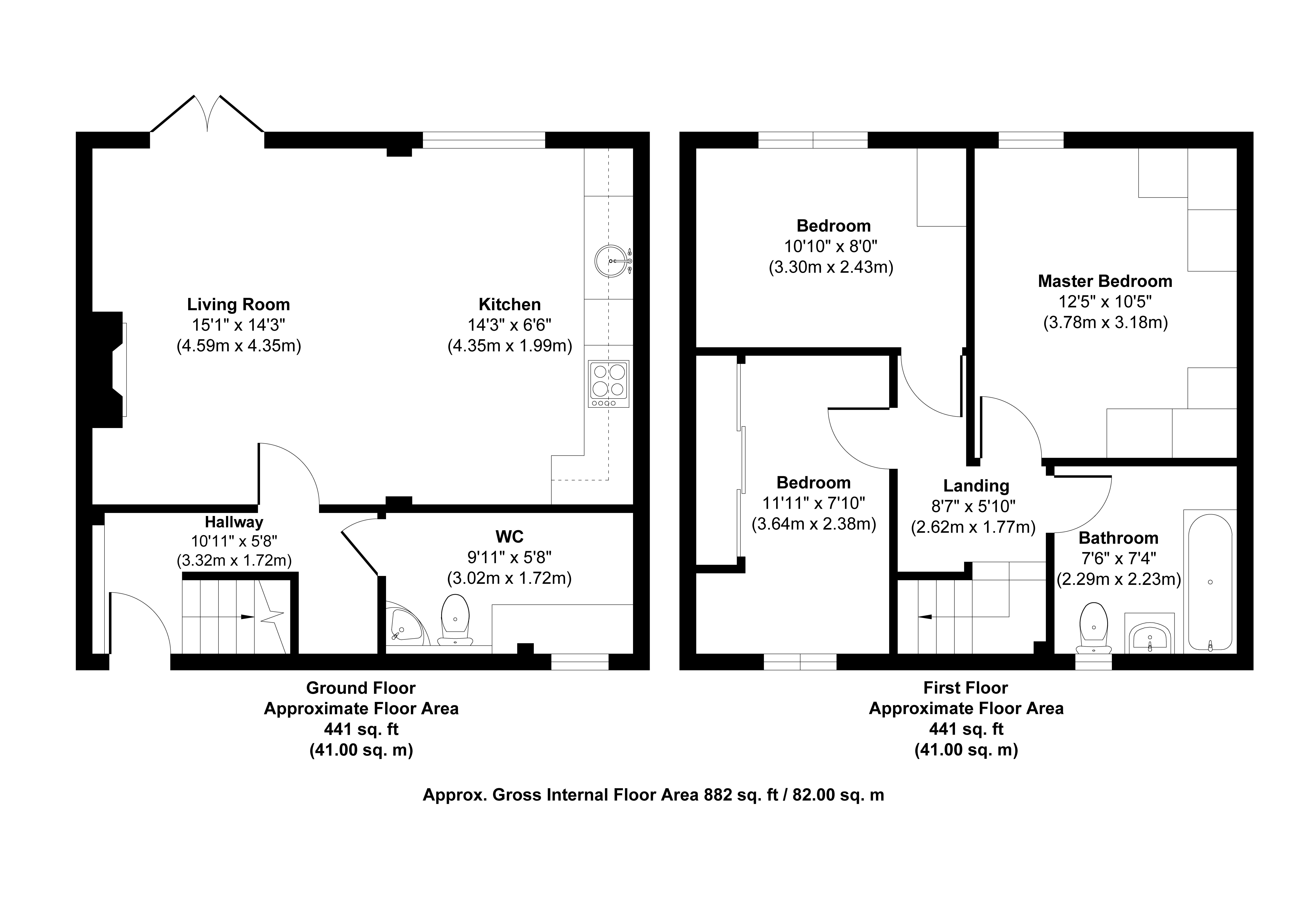
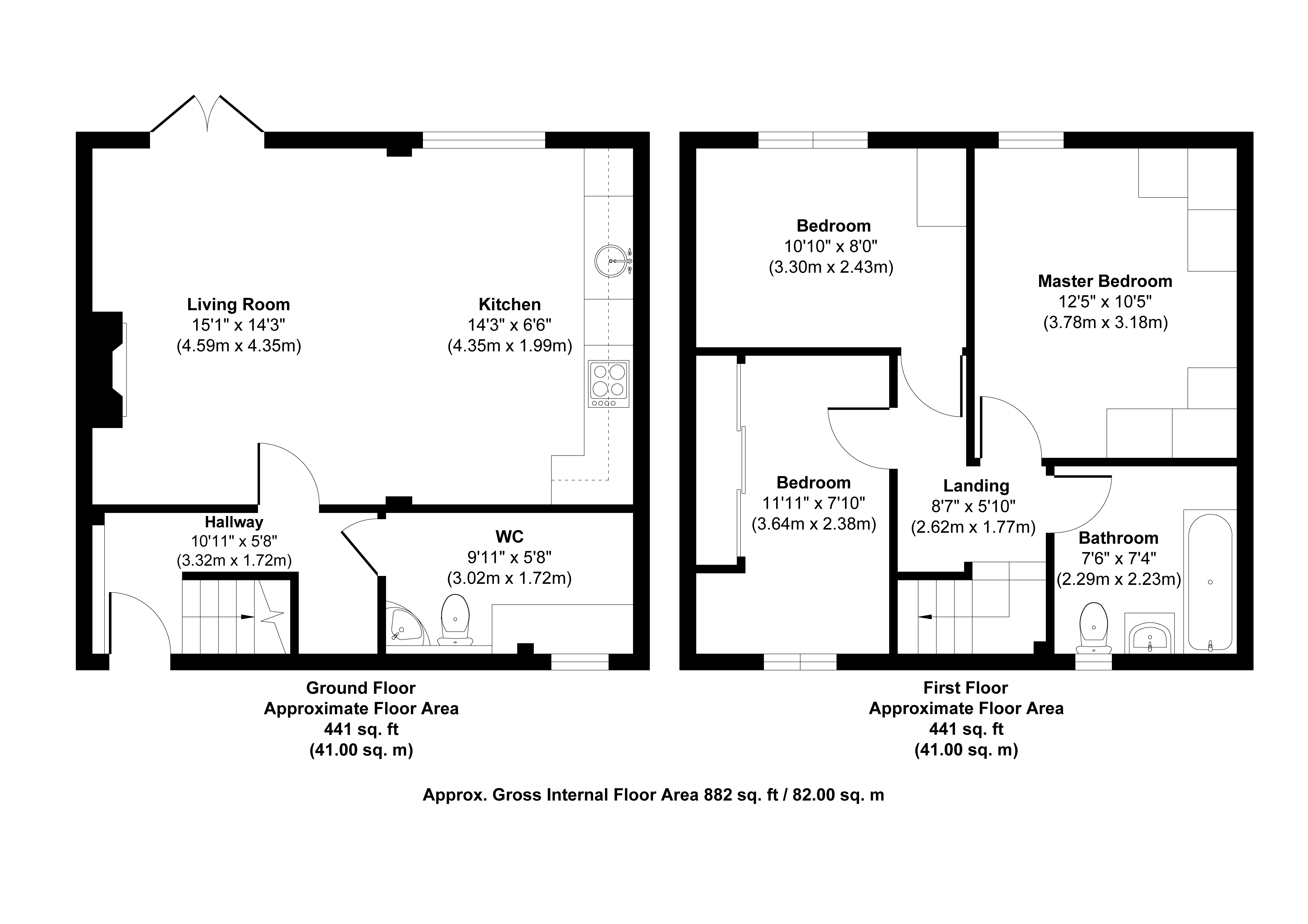
A vacant three-bedroom terrace freehold non-standard construction house. In need of modernisation. 882 SQFT. (Title number: WT154356)


SOLD BY AUCTION FOR £121,000: To be sold on the owner's instruction. A vacant three-bedroom terrace freehold non-standard construction house. In need of modernisation. 882 SQFT. To be sold by auction on Friday, 23 June 2023.

Auctioneer's comments: "This Lot offers a large discount and the opportunity for the resale appreciation of a property in a popular residential area."

Auction date
The property is to be sold by public auction on Friday, 23 June 2023, via a 2-hour online bidding window.

Description
Non-standard construction, terrace, freehold, 882 SQFT, vacant, three bedrooms

Location
Salisbury, South West England

Accommodation
Ground floor: living room/kitchen, WC
First floor: three bedrooms, bathroom

Outside
Frontage, rear garden

EPC rating
D

Tenure
Freehold with vacant possession

Local authority and council tax band
Wiltshire Council
Council tax band: A

Pre-auction bids
To make a pre-auction bid, you must be an approved bidder. Once you have set up your online bidding account, verified your ID and paid the security deposit, you can email the amount you would like to bid. The common auction conditions and special conditions apply to all pre-auction bids, and no conditions will be acceptable. Should your pre-auction bid be accepted, you will need to immediately pay the balance of the 10% deposit (min. £5,000) and all auction fees listed. The Auctioneer reserves the right to refuse any bid.

Auction fees
In addition to the 10% deposit (min. £5,000) of your winning bid, you must pay an auction buying commission of 3.5% plus VAT (min. of £7,000 plus VAT) of the purchase price and auction buying fee of £1,900 plus VAT. Please be aware that additional fees may be payable on completion, including disbursements in the legal pack. Check the legal pack for each lot you are interested in before bidding.

* Generally speaking Guide Prices are provided as an indication of each seller's minimum expectation, i.e. 'The Reserve'. They are not necessarily figures which a property will sell for and may change at any time prior to the auction. Virtually every property will be offered subject to a Reserve (a figure below which the Auctioneer cannot sell the property during the auction) which we expect will be set within the Guide Range or no more than 10% above a single figure Guide.

Lot 68 - 50 Pinewood Way, Salisbury, Wiltshire, SP2 9HX

Unconditional Online Auction Sale
Guide Price* £70,000

Loading the bidding panel...

Joint Agent

Esale

Agreement Documents

Additional Documents

Related Documents

Virtual Tour

Lot 68 Video Tour

Make an Enquiry

Submit an enquiry and someone will be in contact shortly.

 
*  
*  
*
*
*

Share

More Properties View more

Lot 126 | End Time -

Old Smithy, Kemberton, Shifnal, Shropshire, TF11 9LY

Guide Price*:   £400,000
Lot 127 | End Time -

43A Eastgate South, Driffield, Yorkshire, YO25 6LW

Guide Price*:   £80,000