Gallery   |   Video Tour    |     Map

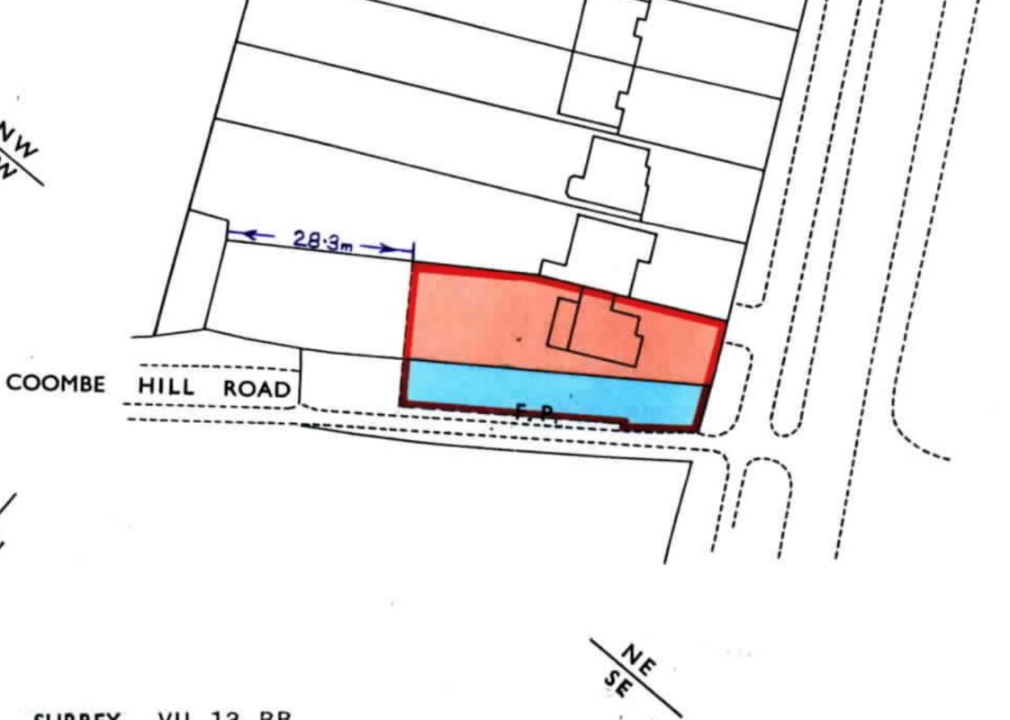
A freehold link-detached house, formerly four bedrooms and over 3,000 sqft, in need of re-development or heavy refurbishment on a plot approximately 0.25 of an acre. (Title number: TGL24725)


FOR SALE BY AUCTION: To be sold by public auction on the owner's instruction. A freehold link-detached house, formerly four bedrooms and over 3,000 sqft, in need of re-development or heavy refurbishment on a plot approximately 0.25 of an acre. The property is currently under scaffold and plastic, the drainage and groundworks have been completed and there is planning underway (see legal documents). It is located 1.9 miles from Norbiton railway station which is Travelcard Zone 5. To be sold via online bidding on Friday, 20 September 2024.

Auctioneers comments: 'A very unique opportunity to buy a plot and development property in this location that will not come up again.'

Auction date
The property is to be sold by public auction on Friday, 20 September 2024 via a 2-hour online bidding window.

Description
Freehold, link-detached, house under scaffold and plastic, 0.25 acre plot

Location
Located close to the A3 London trunk road, mid way between Kingston upon Thames and Wimbledon, 1.9 miles to Norbiton railway station

Accommodation
House under scaffold and plastic

Outside
0.25 acre plot, pedestrian side gate, two vehicle access gates, parking, completed drainage and groundworks

EPC rating
Not applicable

Tenure
Freehold with vacant possession

Local authority and council tax band
Royal Borough of Kingston upon Thames
Council tax band: H (for previous property)

Pre-auction bids
To make a pre-auction bid, you must be an approved bidder. Once you have set up your online bidding account, verified your ID and paid the security deposit, you can email the amount you would like to bid. The common auction conditions and special conditions apply to all pre-auction bids, and no conditions will be acceptable. Should your pre-auction bid be accepted, you will need to immediately pay the balance of the 10% deposit (min. £5,000) and all auction fees listed. The Auctioneer reserves the right to refuse any bid.

Auction fees
IIn addition to the 10% deposit (min. £5,000) of your winning bid, you must pay an auction buying commission of 2.5% plus VAT (min. fee of £2,100 plus VAT) of the purchase price and auction buying fee of £3,800 plus VAT. Please be aware that additional fees may be payable on completion, including disbursements in the legal pack. Check the legal pack for each lot you are interested in before bidding.

* Generally speaking Guide Prices are provided as an indication of each seller's minimum expectation, i.e. 'The Reserve'. They are not necessarily figures which a property will sell for and may change at any time prior to the auction. Virtually every property will be offered subject to a Reserve (a figure below which the Auctioneer cannot sell the property during the auction) which we expect will be set within the Guide Range or no more than 10% above a single figure Guide.

Lot 110 - 213 Robin Hood Way, London, SW20 0AA

Unconditional Online Auction Sale
Guide Price* £900,000

Loading the bidding panel...

Joint Agent

Carringtons

Agreement Documents

Additional Documents

Related Documents

Virtual Tour

Lot 110 Video Tour

Make an Enquiry

Submit an enquiry and someone will be in contact shortly.

 
*  
*  
*
*
*

Share

More Properties View more

Lot 133 | End Time -

Flat 15 Wheatsheaf Court, Kendall Road, Colchester, Essex, CO1 2BU

Guide Price*:   £50,000
Lot 135 | End Time -

12 Glenwood Avenue, Bognor Regis, West Sussex, PO22 8BT

Guide Price*:   £290,000
Lot 130 | End Time -

87 Ashington Grove, Coventry, West Midlands, CV3 4DD

Guide Price*:   £230,000
Lot 134 | End Time -

78 Fore Street, Redruth, Cornwall, TR15 2BL

Guide Price*:   £3,000