Gallery   |   Floorplan    |     Video Tour    |     Map

A detached freehold property arranged as a licensed 22-bedroom House in Multiple Occupation. With full planning and licensing. (Title number: CH445536)


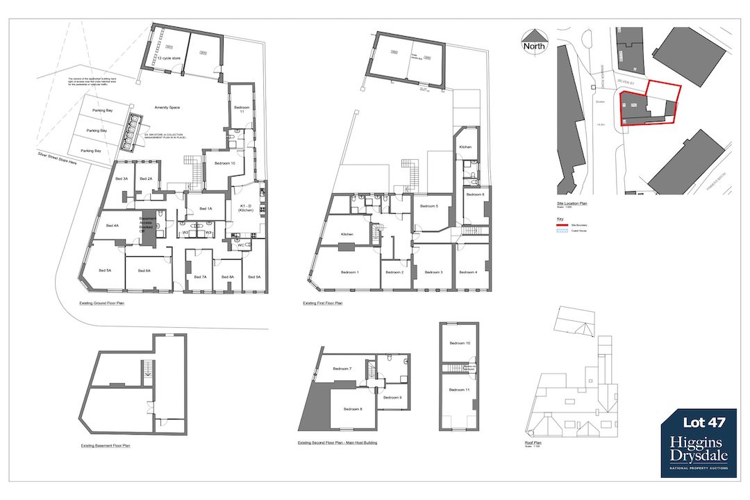
SOLD PRIOR TO AUCTION: To be sold by public auction on the instruction of the company director. for 25 persons from 22 households, the property has parking, a management room, 3 communal receptions/kitchens, 8 bathrooms and WCs. Ideal for investors looking for income with a potential 13.2% gross annual yield.

Auctioneer's comments: 'This is a unique Lot, a large and well-established HMO that has been carefully laid out, planned and licensed, with a potential yield of over 10% on the guide price as well as the opportunity for conversion to flats this, is a Lot that will attract serious investors.'

Auction date
The property will be sold by public auction on Friday, 24 February 2023, via a 2-hour online bidding window.

To view
The property can be viewed by booking onto one of the advertised managed block viewings. Once you have registered to bid by setting up your online bidding account, you will be emailed a Calendly link to do this. Each block viewing is strictly 30 minutes, and no ad hoc viewings will be available. In most cases, a video tour will be available.

Description
22-bedroom HMO, detached, freehold, full planning. 8 bathrooms, 3 reception/kitchens, parking, 13.2% potential gross annual yield

Outside
Parking, courtyard

Location
Warrington, Lancashire, North West England, opposite the Halliwell Jones Stadium, 0.2 miles to Warrington Central railway station

Accommodation
Ground and first floor: 23 bedrooms, 8 bath/shower room, multiple WCs, 3 receptions/kitchens

EPC rating
To be confirmed

Tenure
Freehold

Local authority and council tax band
Warrington Borough Council
Council tax band: A, B

The method of sale
The property is to be sold as per the V4 Common Auction Conditions. This is an immediate and unconditional exchange of contracts with the payment of a 10% deposit of the winning bid and the auction fees for the property. Completion will be confirmed in the V4 Special Conditions in the Legal Pack. It is the bidder’s responsibility to read these and understand the terms and conditions of the auction.

Set up an online bidding account
Once you have expressed an interest in the property, you will be emailed a link to set up your online bidding account (this can be found on our website under ‘Auction Lots'. Setting up your bidding account is free, and it is here that you will have access to the legal pack. Once your account is registered, you will be automatically notified of any additions or changes to the legal documents or the auction date/process. Only the bidder needs to register. Should you win the auction, additional buyers can be nominated.

Confirm your ID
Once you have set up your online bidding account, we will send you an SMS through which you can download the Credas smartphone application to work through the remote confirmation of your ID. This will need to be done for all nominated buyers should you win the auction. Please note that should your nominated buyers fail to complete the ID checks, you, the bidder, will be noted as the buyer per the V4 Common Auction Conditions.

Read the legal documents
Each property will have a full set of legal documents available through your online bidding account. The legal pack will contain all the information on the property, and the V4 Special Conditions will detail the completion date and any additional fees to be paid.

Pay the security deposit
To bid on the day during the 2-hour online bidding window, and you will need to pay a security deposit of £5,000. Once your ID is confirmed, you will be sent the relevant details to pay the security deposit. This will be paid into our client account using a FASTER PAYMENT /CHAPS (BACS is unacceptable) via a link we will email you or by card over the phone. This deposit will be returned should the Lot withdraw, you withdraw, or you are unsuccessful. If you are the winning bidder, you will be invoiced for the balance of the 10% deposit and auction fees immediately. There is a £49 incl. VAT processing fee if the security deposit is paid by card via the link or over the phone.

Pre-auction bids
These must be made in writing by email and will only be put to the client once you have set up your online bidding account and confirmed your ID as described above. The pre-auction bid will also need to be more than the advertised guide price. Should your pre-auction bid be accepted, you will need to make payment of the 10% deposit and the auction fees immediately.

2-Hour online bidding window
The 2-hour online bidding is the modern version of the auction saleroom. Our process is public and transparent. Once your bidding account is set up, your ID is confirmed, and you have paid a security deposit, you will be able to bid once the auction opens. We will offer bidding increments, and you can bid higher amounts. The final bid will need to stand for 30 seconds when the auction ends. You will then need to pay the balance of the 10% deposit and auction fees in full and supply a valid conveyancer within 2-working days of the auction ending or the acceptance of a pre-auction bid.

* Generally speaking Guide Prices are provided as an indication of each seller's minimum expectation, i.e. 'The Reserve'. They are not necessarily figures which a property will sell for and may change at any time prior to the auction. Virtually every property will be offered subject to a Reserve (a figure below which the Auctioneer cannot sell the property during the auction) which we expect will be set within the Guide Range or no more than 10% above a single figure Guide.

Lot 47 - Red Lion, 39-41 Winwick Road, Warrington, Cheshire, WA2 7DH

Unconditional Online Auction Sale
Guide Price* £700,000

Loading the bidding panel...

Agreement Documents

Additional Documents

Related Documents

Virtual Tour

Lot 47 Video Tour

Make an Enquiry

Submit an enquiry and someone will be in contact shortly.

 
*  
*  
*
*
*

Share

More Properties View more

Lot 129 | End Time -

66D Norfolk Road, Littlehampton, West Sussex, BN17 5HB

Guide Price*:   £50,000
Lot 128 | End Time -

Flat 14, 386 London Road, Croydon, London, CR0 2SU

Guide Price*:   £140,000
Lot 130 | End Time -

87 Ashington Grove, Coventry, West Midlands, CV3 4DD

Guide Price*:   £280,000