Gallery   |   Floorplan    |     Video Tour    |     Map

A two-bedroom freehold terrace house in need of modernisation. Ideal for builders and investors. (Title number: SF128122)


FOR SALE BY AUCTION: To be sold by public auction on the owner's instruction. A two-bedroom freehold terrace house in need of modernisation. Ideal for builders and investors.

Auctioneer's comments: 'An ideal Lot for investors to add value and either let or resell'.

Auction date
The property will be sold by public auction on Friday, 20 January 2023, via a 2-hour online bidding window.

To view
The property can be viewed by booking onto one of the advertised managed block viewings. Once you have registered to bid by setting up your online bidding account, you will be emailed a Calendly link to do this. Each block viewing is strictly 30 minutes, and no ad hoc viewings will be available. In most cases, a video tour will be available.

Description
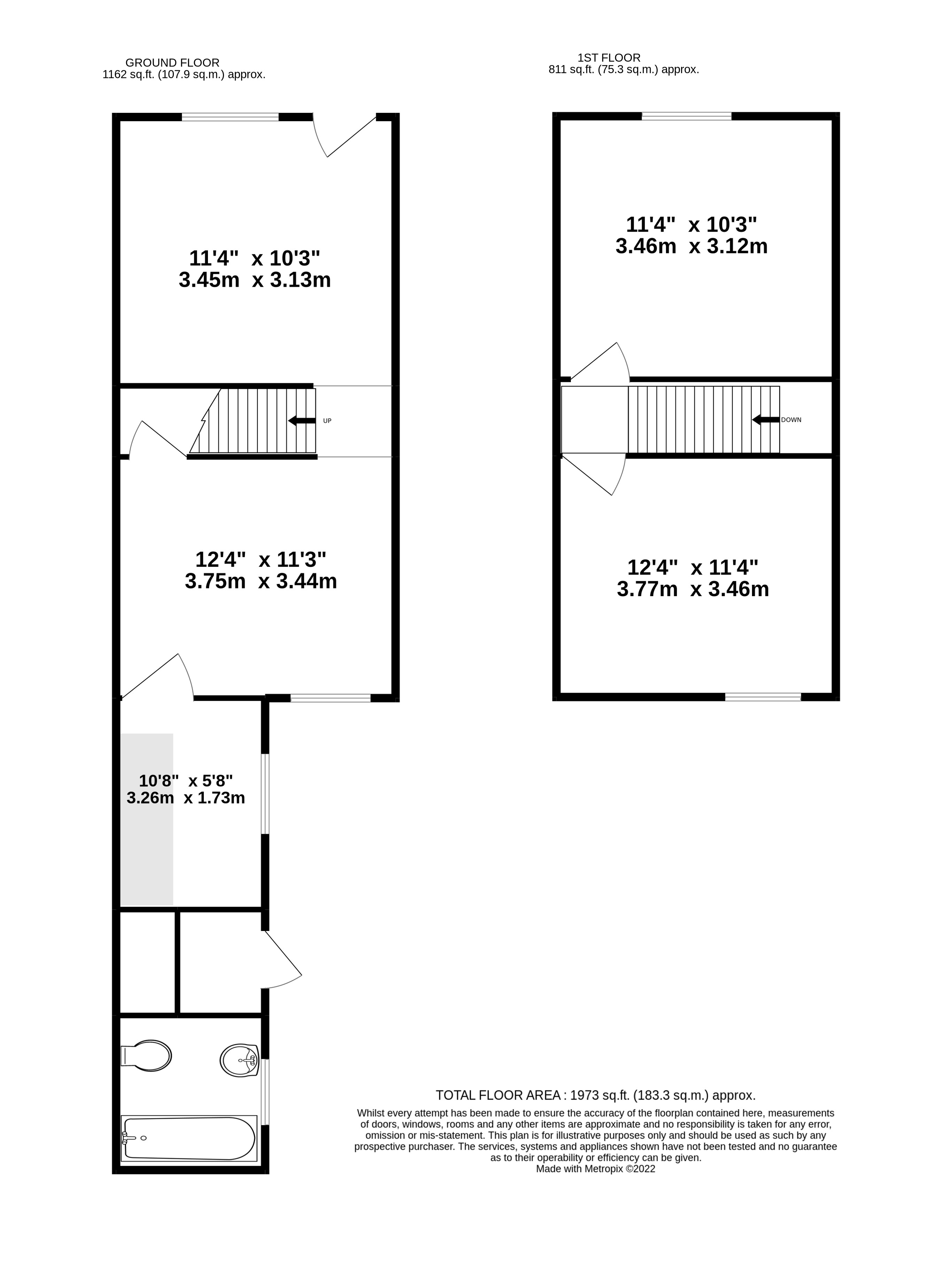
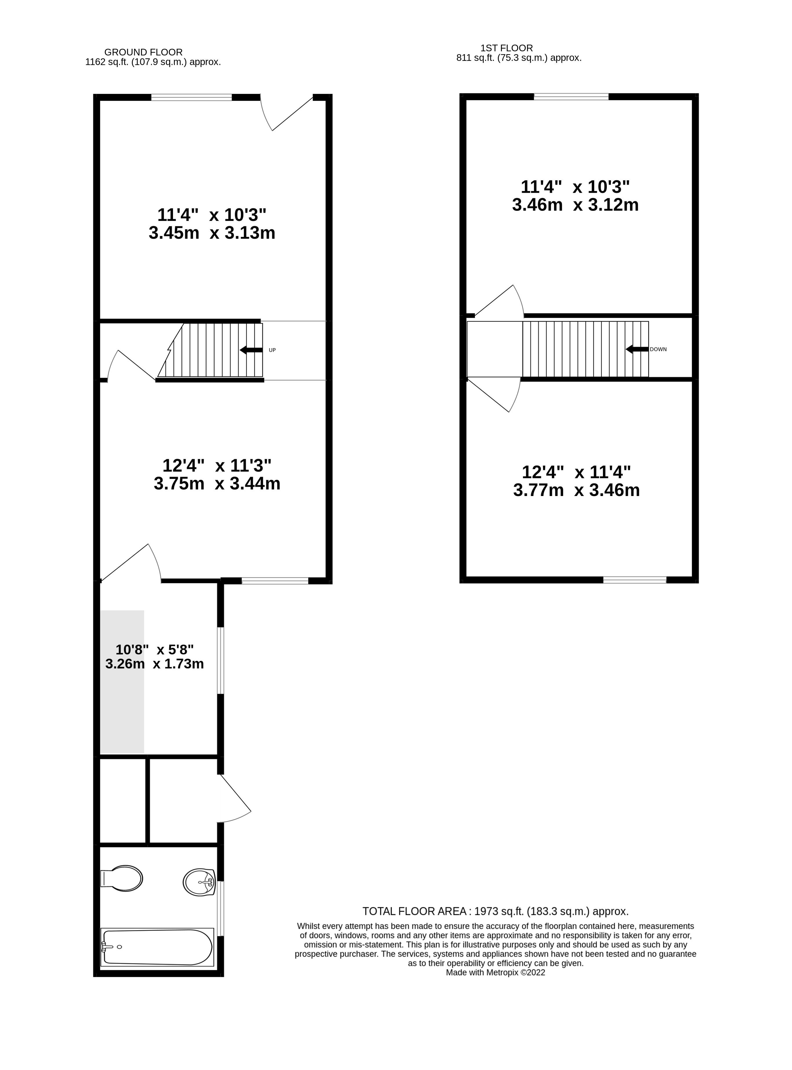
Two bedrooms, freehold, terrace, 742 SQFT, in need of modernisation

Location
Stoke-On-Trent, 1.6 miles to Longport railway station

Accommodation
Ground floor: two receptions, kitchen, bathroom
First floor: two bedrooms

Outside
Rear yard

EPC rating
D

Tenure
Freehold with vacant possession

Local authority and council tax band
Stoke-on-Trent City Council
Council tax band: A

The method of sale
The property is to be sold as per the V4 Common Auction Conditions. This is an immediate and unconditional exchange of contracts with the payment of a 10% deposit of the winning bid and the auction fees for the property. Completion will be confirmed in the V4 Special Conditions in the Legal Pack. It is the bidder’s responsibility to read these and understand the terms and conditions of the auction.

Set up an online bidding account
Once you have expressed an interest in the property, you will be emailed a link to set up your online bidding account (this can be found on our website under ‘Auction Lots'. Setting up your bidding account is free, and it is here that you will have access to the legal pack. Once your account is registered, you will be automatically notified of any additions or changes to the legal documents or the auction date/process. Only the bidder needs to register. Should you win the auction, additional buyers can be nominated.

Confirm your ID
Once you have set up your online bidding account, we will send you an SMS through which you can download the Credas smartphone application to work through the remote confirmation of your ID. This will need to be done for all nominated buyers should you win the auction. Please note that should your nominated buyers fail to complete the ID checks, you, the bidder, will be noted as the buyer per the V4 Common Auction Conditions.

Read the legal documents
Each property will have a full set of legal documents available through your online bidding account. The legal pack will contain all the information on the property, and the V4 Special Conditions will detail the completion date and any additional fees to be paid.

Pay the security deposit
To bid on the day during the 2-hour online bidding window, and you will need to pay a security deposit of £5,000. Once your ID is confirmed, you will be sent the relevant details to pay the security deposit. This will be paid into our client account using a FASTER PAYMENT /CHAPS (BACS is unacceptable) via a link we will email you or by card over the phone. This deposit will be returned should the Lot withdraw, you withdraw, or you are unsuccessful. If you are the winning bidder, you will be invoiced for the balance of the 10% deposit and auction fees immediately. There is a £49 incl. VAT processing fee if the security deposit is paid by card via the link or over the phone.

Pre-auction bids
These must be made in writing by email and will only be put to the client once you have set up your online bidding account and confirmed your ID as described above. The pre-auction bid will also need to be more than the advertised guide price. Should your pre-auction bid be accepted, you will need to make payment of the 10% deposit and the auction fees immediately.

2-Hour online bidding window
The 2-hour online bidding is the modern version of the auction saleroom. Our process is public and transparent. Once your bidding account is set up, your ID is confirmed, and you have paid a security deposit, you will be able to bid once the auction opens. We will offer bidding increments, and you can bid higher amounts. The final bid will need to stand for 30 seconds when the auction ends. You will then need to pay the balance of the 10% deposit and auction fees in full and supply a valid conveyancer within 2-working days of the auction ending or the acceptance of a pre-auction bid.

Auction fees
In addition to the 10% deposit of your winning bid, you will need to pay 1.75% plus VAT of the purchase price and £1,900 plus VAT. Please be aware there may be additional fees, including disbursements in the legal pack, payable on completion. Check the legal pack for each lot you are interested in before bidding.

A note on guide prices
Guide Prices are provided to indicate each seller's minimum expectation. They do not necessarily set the figure that a lot will sell for and may change at any time before the auction. Each lot will be offered subject to a reserve (a figure below which the auctioneer cannot sell the property during the auction) which will be set within a reasonable bidding range of the stated guide price.

Completion
The completion date is specified in the V4 Special Conditions contained in the Legal Pack for the property, which can be accessed through your online bidding account. If no date is mentioned in the V4 Special Conditions, the V4 Common Auction Conditions mandate that the completion will be 20 working days from the auction or sooner by agreement. There will be no access to the property allowed before completion except by accredited and insured surveyors, as requested and arranged through us. Upon completion, once the funds are confirmed, the keys will be released by post to the new owner. This can take up to 3 working days.

* Generally speaking Guide Prices are provided as an indication of each seller's minimum expectation, i.e. 'The Reserve'. They are not necessarily figures which a property will sell for and may change at any time prior to the auction. Virtually every property will be offered subject to a Reserve (a figure below which the Auctioneer cannot sell the property during the auction) which we expect will be set within the Guide Range or no more than 10% above a single figure Guide.

Lot 43 - 97 Elm Street, Stoke-on-Trent, Staffordshire, ST6 2HL

Unconditional Online Auction Sale
Guide Price* £30,000

Loading the bidding panel...

Agreement Documents

Additional Documents

Related Documents

Virtual Tour

Lot 43 Video Tour

Make an Enquiry

Submit an enquiry and someone will be in contact shortly.

 
*  
*  
*
*
*

Share

More Properties View more

Lot 129 | End Time -

66D Norfolk Road, Littlehampton, West Sussex, BN17 5HB

Guide Price*:   £50,000
Lot 128 | End Time -

Flat 14, 386 London Road, Croydon, London, CR0 2SU

Guide Price*:   £140,000
Lot 130 | End Time -

87 Ashington Grove, Coventry, West Midlands, CV3 4DD

Guide Price*:   £280,000