Gallery   |   Floorplan    |     Video Tour    |     Map

Large detached house, potential to improve


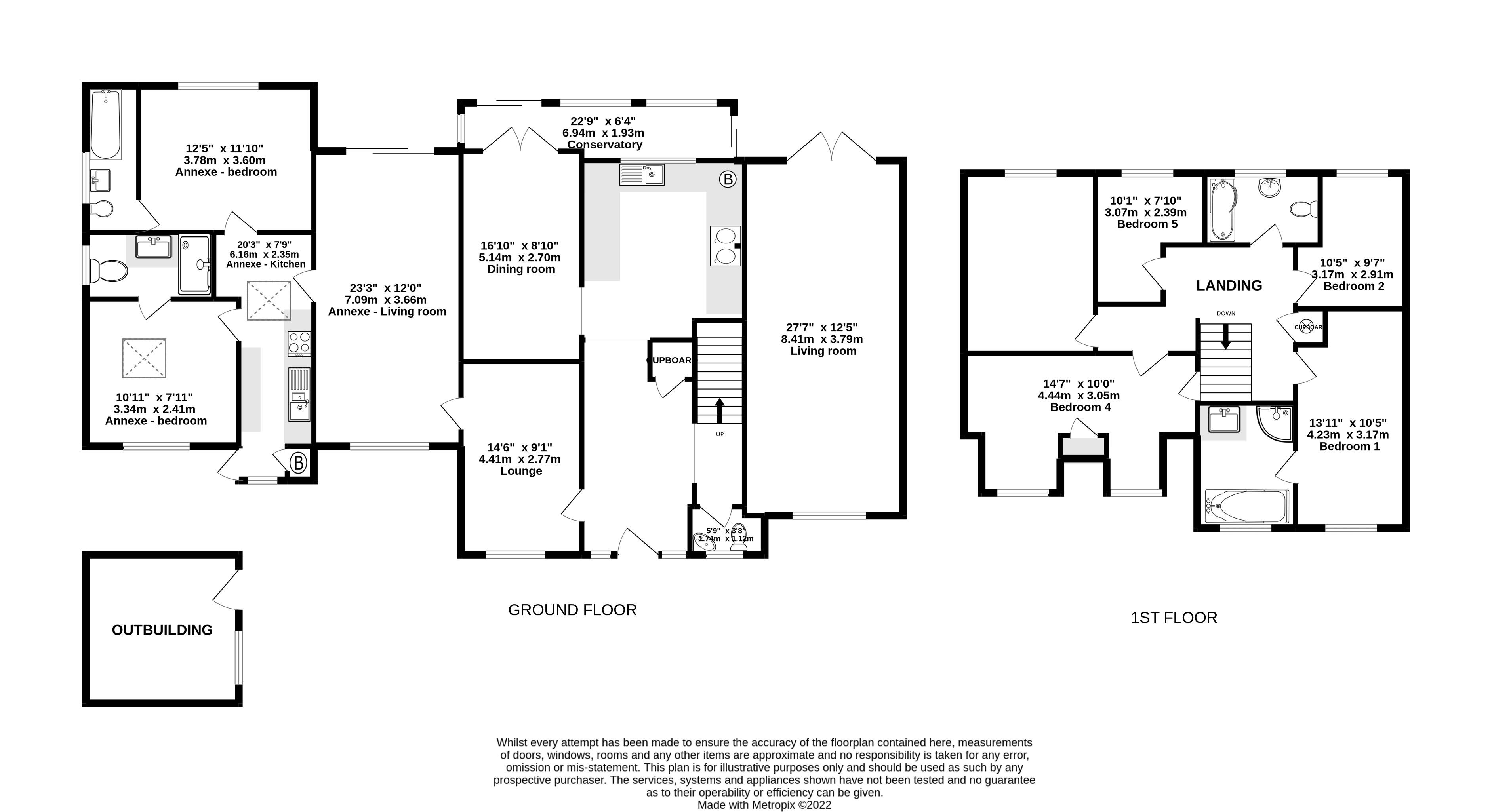
FOR SALE BY AUCTION: A freehold detached house configured as the main 5-bedroom house with an attached 2-bedroom annexe, the property measures approximately 2,700 sqft internally and offers potential to improve.

Auctioneer's comments: "This property is the largest on the development and to the buyer offers potential to improve as well as 7-bedrooms to accommodate a large family looking to have an annexe."

Auction date
To be sold by public auction via a 2-hour online bidding window on Friday 9 September 2022, bidding will open at 1100 and close at 1300.

To view
The property can be viewed by booking onto one of the advertised managed block viewings. Once you have registered to bid by setting up your online bidding account you will be emailed the Calendly link to choose the date and time that suits you best. Each block viewing is strictly 30 minutes, and no ad hoc viewings will be available. In most cases, a video tour will be available. The managed block viewing for this property is Thursday 8 September 2022 at 1130.

Description
* Detached house * Freehold * 2,700 sqft approx. * Configured as a 5-bedroom house with a 2-bedroom annexe

Outside
Parking for multiple cars to the front drive, separate annexe garden. wrap around the main house garden.

Location
* 1.8 miles to Stanford-le-Hope railway station * 1.3 miles to Orsett Hospital * Access to the M25 at the Mar Dyke Interchange

Accommodation
5 Bedroom house:
Ground floor: Lounge, living room, kitchen, dining room, hallway, WC
First floor: 5 bedrooms, shower/bathroom, en suite shower/bath
Outside: Rear garden, front drive parking, detached garage and outbuilding

2 Bedroom annexe:
Ground floor: 2 bedrooms, kitchen, lounge, wet room, ensuite, master bedroom en suite
Outside: separated rear garden, parking to the front

EPC rating
D

Tenure
Freehold with vacant possession

Local authority and council tax band
Thurrock Council
Council tax band F

The method of sale
The property is to be sold as per the V4 Common Auction Conditions. This is an immediate and unconditional exchange of contracts with the payment of a 10% deposit of the winning bid and the auction fees for the property. Completion will be confirmed in the V4 Special Conditions in the Legal Pack. It is the bidder’s responsibility to read these and understand the terms and conditions of the auction.

Set up an online bidding account
Once you have expressed an interest in the property you will be emailed a link to set up your online bidding account (this can be found on our website under ‘View Current Auction Lots”. Setting up for bidding account is free and it is here that you will have access to the Legal Pack. Once your account is registered you will be automatically notified of any additions or changes to the legal documents or the auction date/process. Only the bidder needs to register, should you win the auction additional buyers can be nominated.

Confirm your ID
Once you have set up your online bidding account we will send you an SMS through which you can download the Credas smartphone application to work through the remote confirmation of your ID. This will need to be done for all nominated buyers should you win the auction, please note that should your nominated buyers fail to complete the ID checks then you, the bidder, will be noted as the buyer as per the V4 Common Auction Conditions.

Read the legal documents
Each property will have a full set of legal documents available through your online bidding account. The legal pack will contain all the information held on the property, and the V4 Special Conditions will detail the completion date and any additional fees to be paid on completion.

View the property
The property can be viewed by booking into one of the advertised managed block viewings. Once you have registered to bid by setting up your online bidding account you will be emailed the Calendly link to choose the date and time that suits you best. Each block viewing is strictly 30 minutes, and no ad hoc viewings will be available. In most cases, a video tour will be available. Managed block viewings are the Tuesday and Thursday of the auction week.

Pay the security deposit
In order to bid on the day during the 2-hour online bidding window, you will need to lodge a security deposit of £5,000.. Once your ID is confirmed you will be sent the relevant details to pay the security deposit. This is to be paid into our client account by means of a Faster Payment. Should you not win the auction this will be returned to you immediately and in full. If you are the winning bidder you will be invoiced for the balance of the 10% deposit and auction fees.

Pre-auction bids
These must be made in writing by email and will only be put to the client once you have set up your online bidding account and confirmed your ID as described above. The pre-auction bid will also need t to be in excess of the advertised guide price. Should your pre-auction bid be accepted you will need to make payment of the 10% deposit and the auction fees immediately.

2-Hour online bidding window
A buyer’s fee of £2,500 plus VAT is payable on each lot that you buy, in addition to the sale price. Please be aware there may be other additional fees, including disbursements contained in the legal pack payable on completion. Please ensure that you check the legal pack for each lot that you are interested in, prior to bidding.

Auction fees
In addition to the 10% deposit of the purchase price, a buyer's fee of £3,500 is payable on sale. Please be aware there may be additional fees, including disbursements in the legal pack payable on completion, ensure that you check the legal pack for each lot that you are interested in, prior to bidding.

A note on guide prices
Guide Prices are provided as an indication of each seller's minimum expectation. They do not necessarily set the figure that a lot will sell for and may change at any time prior to the auction. Each lot will be offered subject to a reserve, (a figure below which the auctioneer cannot sell the property during the auction) which will be set within a reasonable bidding range of the stated guide price.

Completion:
The completion date is specified in the V4 Special Conditions contained in the Legal Pack for the property which can be accessed through your online bidding account. If there is no date mentioned in the V4 Special Conditions the V4 Common Auction Conditions mandate that the completion will be 20 working days from the auction or sooner by agreement. There will be no access to the property allowed before completion with the exception of accredited and insured surveyors as requested and arranged through us. On the date of completion, once the funds are confirmed the keys will be released by post to the new owner, this can take up to 3 working days.

* Generally speaking Guide Prices are provided as an indication of each seller's minimum expectation, i.e. 'The Reserve'. They are not necessarily figures which a property will sell for and may change at any time prior to the auction. Virtually every property will be offered subject to a Reserve (a figure below which the Auctioneer cannot sell the property during the auction) which we expect will be set within the Guide Range or no more than 10% above a single figure Guide.

Lot 15 - 8 Beverley Close, Orsett, Grays, Essex, RM16 3EA

Unconditional Online Auction Sale
Guide Price* £500,000

Loading the bidding panel...

Agreement Documents

Additional Documents

Related Documents

Virtual Tour

Lot 15: Video Tour

Make an Enquiry

Submit an enquiry and someone will be in contact shortly.

 
*  
*  
*
*
*

Share

More Properties View more

Lot 129 | End Time -

66D Norfolk Road, Littlehampton, West Sussex, BN17 5HB

Guide Price*:   £50,000
Lot 128 | End Time -

Flat 14, 386 London Road, Croydon, London, CR0 2SU

Guide Price*:   £140,000
Lot 130 | End Time -

87 Ashington Grove, Coventry, West Midlands, CV3 4DD

Guide Price*:   £280,000