Gallery   |   Floorplan    |     Video Tour    |     Map

Large detached house, potential to improve


FOR SALE BY AUCTION: The auction guide price range is £550,000 to £950,000. A freehold detached house configured as the main 5-bedroom house with an attached 2-bedroom annexe, the property measures approximately 2,700 sqft internally and offers potential to improve.

Auctioneer's comments: "This property is the largest on the development and to the buyer offers potential to improve as well as 7-bedrooms to accommodate a large family looking to have an annexe."

Auction date:
To be sold by public auction via a 2-hour online bidding window on Friday 29 July 2022, bidding will open at 11.00 AM and close at 1.00 PM.

To view:
There will be 2-managed block viewings of 30-minutes each, in order to book please first set up your online bidding account and you will be emailed a Calendly link to book into one of the viewing blocks. The planned managed block viewing dates are * Tuesday 26 July 2022 at 1.00 PM * Thursday 28 July 2022 at 3.00 PM.

Registration:
All bidders are required to register in order to be approved to bid. This can be done via the lot listing on our website via the 'Traditional Auction Lots' page. Once registered you will be able to view and download the legal pack (when available), please note that in order to bid you will need to complete our Credas ID check (sent once you register) and have provided a payment card the week of the auction. Only the bidder needs to register, after the auction, the bidder can nominate additional buyers or a company to be the buyer, please note that if the ID checks for these nominated persons are not received within 2-hours of the auction, the bidder will be noted as the buyer on the contract.

Location:
* 1.8 miles to Stanford-le-Hope railway station * 1.3 miles to Orsett Hospital * Access to the M25 at the Mar Dyke Interchange

Description:
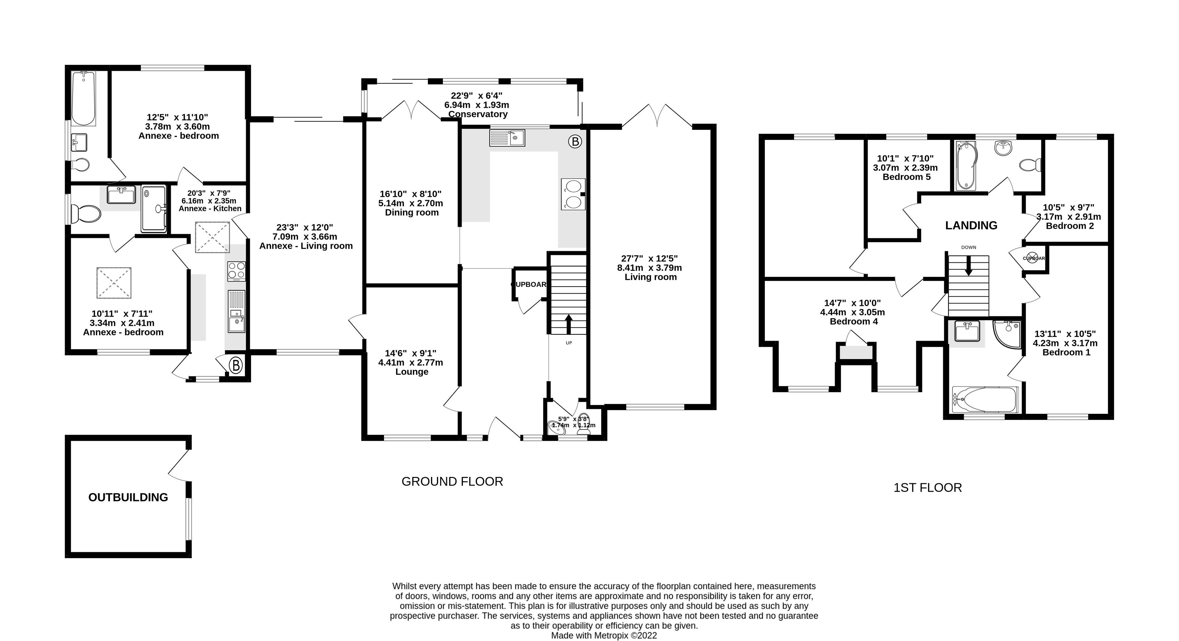
* Detached house * Freehold * 2,700 sqft approx. * Configured as a 5-bedroom house with a 2-bedroom annexe

Accommodation comprises:
5-bedroom house
Ground floor: Lounge, living room, kitchen, dining room, hallway, WC
First floor: 5 bedrooms, shower/bathroom, en suite shower/bath
Outside: Rear garden, front drive parking, detached garage and outbuilding

2-bedroom annexe:
Ground floor: 2 bedrooms, kitchen, lounge, wet room, ensuite, master bedroom en suite
Outside: separated rear garden, parking to the front

EPC rating:
D

Tenure:
Freehold with vacant possession

Local authority:
Thurrock Council

Council tax band:
F
Annexe: A

Legal pack:
For each traditional auction lot, there are special conditions of sale and other documentation provided by the sellers’ conveyancer. If you wish to view and download the legal pack, you will need to register an online bidding account via the link on our website. Once you have set up your online bidding account you will receive a notification by email when the legal pack is received from the conveyancer.

Guide prices:
Guide Prices are provided as an indication of each seller's minimum expectation. They do not necessarily set the figure that a lot will sell for and may change at any time prior to the auction. Each lot will be offered subject to a reserve, (a figure below which the auctioneer cannot sell the lot during the auction) which will be set within a reasonable bidding range of the stated guide price.

Pre-auction bids:
These must be made in writing by email and will only be considered when an online bidding accounting has been set up, including the ID confirmation and a payment card uploaded to the account. Pre-auction bids are on the basis of the terms of the auction, in a traditional auction, this means an immediate exchange of contracts upon acceptance with a 10% deposit as well as the buyer's fee listed.

Auction fees:
A buyer’s fee of £3,500 plus VAT is payable on each lot you buy, in addition to the sale price. Please be aware there may be additional fees, including disbursements in the legal pack payable on completion. Please ensure that you check the legal pack for each lot you are interested in before bidding.

Online bidding:
In order to bid when the lot opens you will need to set up your online bidding account through the specific lot on our website under 'Current Auction Lots'. Ensure you read our 'Auction Buying Guide' carefully. In order to be approved to bid you will need to complete your online bidding account, you will need to confirm your ID and residency through a Credas link that will be emailed to texted to you, and within a week of the auction you will need to upload a valid payment card and a hold will be placed on the security deposit amount listed for this lot (please note that when you win the bidding you are required to pay the 10% deposit and the auction/buyers fee, once the security deposit is taken you will be invoiced by email for the immediate payment of the balance).

Method of sale:
Please note that the method of sale is by auction, with the immediate and unconditional exchange of contracts when the auction ends under the terms of the V4 Common Auction Conditions.

* Generally speaking Guide Prices are provided as an indication of each seller's minimum expectation, i.e. 'The Reserve'. They are not necessarily figures which a property will sell for and may change at any time prior to the auction. Virtually every property will be offered subject to a Reserve (a figure below which the Auctioneer cannot sell the property during the auction) which we expect will be set within the Guide Range or no more than 10% above a single figure Guide.

Lot 15 - 8 Beverley Close, Orsett, Grays, Essex, RM16 3EA

Unconditional Online Auction Sale
Guide Price* £500,000

Loading the bidding panel...

Agreement Documents

Additional Documents

Related Documents

Virtual Tour

Lot 15: Video Tour

Make an Enquiry

Submit an enquiry and someone will be in contact shortly.

 
*  
*  
*
*
*

Share

More Properties View more

Lot 129 | End Time -

66D Norfolk Road, Littlehampton, West Sussex, BN17 5HB

Guide Price*:   £50,000
Lot 128 | End Time -

Flat 14, 386 London Road, Croydon, London, CR0 2SU

Guide Price*:   £140,000
Lot 130 | End Time -

87 Ashington Grove, Coventry, West Midlands, CV3 4DD

Guide Price*:   £280,000