Gallery   |   Floorplan    |     Video Tour    |     Map

2-bedroom terrace house, in need of improvement


FOR SALE BY AUCTION: Auction guide £20,000 to £30,000 - A vacant 2-bedroom terrace house in need of improvement. Ideal for investors. To be sold by public auction with online bidding which will open at 11.00 AM Friday 22 April 2022 and close at 1.00 PM Friday 22 April 2022.

Auction date:
To be sold by public auction with online bidding which will open at 11.00 AM Friday 22 April 2022 and close at 1.00 PM Friday 22 April 2022.

To view:
Managed block viewings of the property will be available for the week of the auction, request more information by email.

Registration:
All bidders are required to register in order to be approved to bid. This can be done via the lot listing on our website via the 'Current Lots' page. Once registered you will be able to view and download the legal pack (when available), please note that in order to bid you will need to complete our Credas ID check (sent once you register) and have provided a payment card (from 16 April 2022 1.00 PM).

Location:
* Shildon * 0.6 miles to Shildon rail station * 3.2 miles to Bishop Auckland

Description:
* Terrace house * Freehold * Vacant * In need of improvement

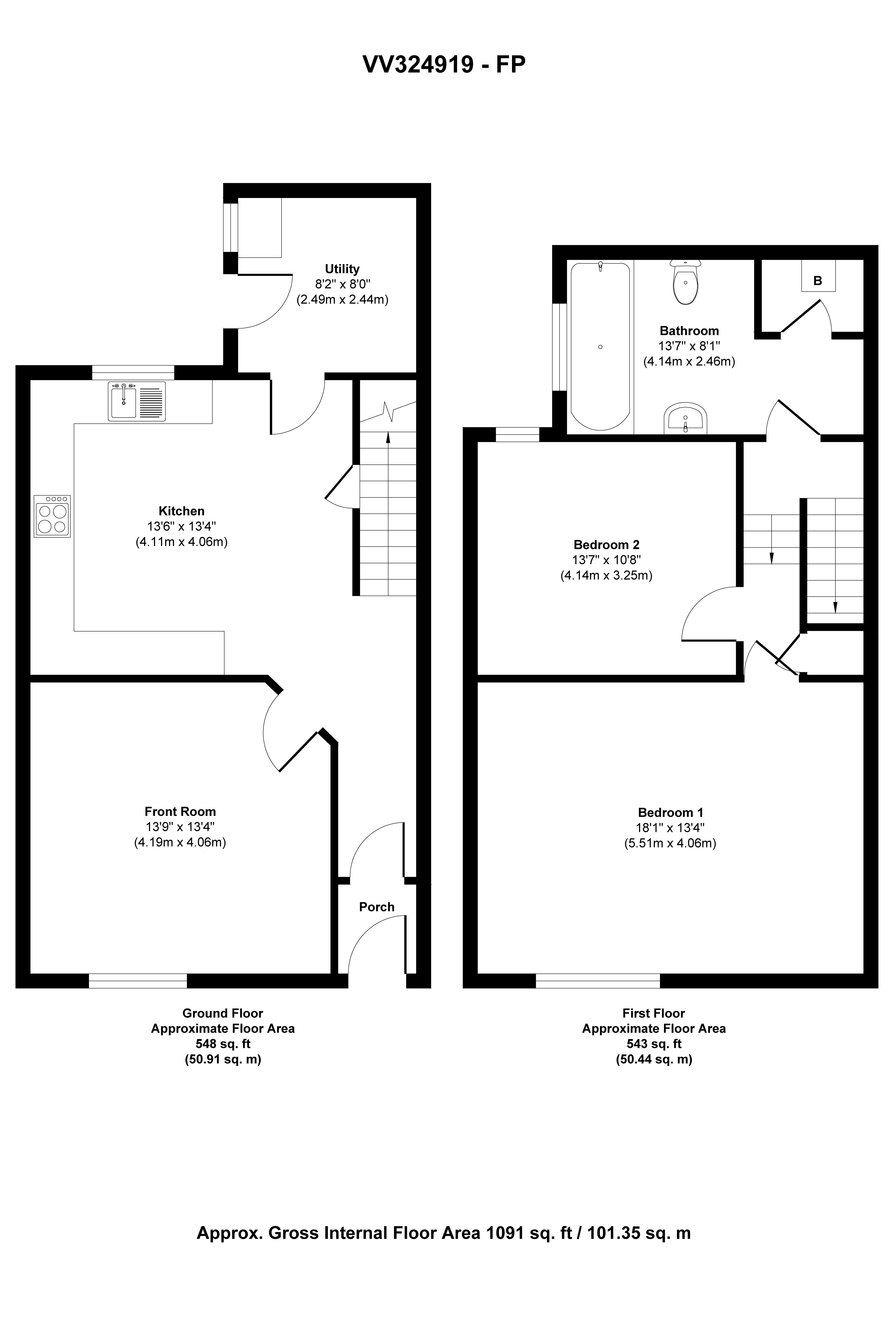
Accommodation:
Ground floor: 2 receptions, kitchen
First floor: 2 bedrooms, bathroom

Outside:
Rear yard

EPC rating:
D

Tenure:
Freehold with vacant possession

Local authority:
Durham County Council

Council tax band:
A

Legal pack:
For each auction lot there are special conditions of sale and other documentation provided by the vendor’s conveyancer. If you wish to view and download the legal pack, you will need to register an online bidding account via the link on our website. Once you have set up your online bidding account you will receive notification by email when the legal pack is received from the conveyancer.

Guide prices:
Guide Prices are provided as an indication of each seller's minimum expectation. They do not necessarily set the figure that a lot will sell for and may change at any time prior to the auction. Each lot will be offered subject to a reserve, (a figure below which the auctioneer cannot sell the lot during the auction) which will be set within a reasonable bidding range of the stated guide price.

Pre-auction bids:
These must be made in writing by email and will only be considered when an online bidding accounting has been set up, including the ID confirmation and a payment card uploaded to the account. Pre-auction bids are on the basis of the terms of the auction, if a traditional auction, this means an immediate exchange of contracts upon acceptance with a 10% deposit as well as the buyer's fee listed, £1,250 plus VAT.

Additional fees:
A buyer’s fee of £1,250 plus VAT is payable on each lot that you buy, in addition to the sale price. Please be aware there may be other additional fees, including disbursements contained in the legal pack payable on completion. Please ensure that you check the legal pack for each lot that you are interested in, prior to bidding.

Online bidding:
In order to bid when the lot opens at 11.00 AM on Friday the 22 April 2022 (closes at 1.00 PM the same day) you will need to set up your online bidding account through the specific lot on our website under 'Current Auction Lots'. Ensure you read our 'Auction Buying Guide' carefully. In order to be approved to bid you will need to complete your online bidding account, you will need to confirm your ID and residency through a Credas link that will be emailed to texted to you, within a week of the auction (Saturday 16 April 2022 1.00 PM) you will need to upload a valid payment card and a hold will be placed on the security deposit amount which is £5,000 for this lot (please note that when you win the bidding you are required to pay the 10% deposit and the buyers fee of £1.250 plus VAT, once the £5,000 is taken you will be invoiced by email for the immediate payment of the balance if 10% deposit and buyers fee exceeds £5.000). The security deposit is calculated as 10% of the starting bid with a minimum of £5,000. Completion will be specified in the special conditions contained in the legal pack (this pack is found for download in your online bidding account).

Method of sale:
Please note that the method of sale is by auction, immediate and unconditional exchange of contracts when the auction ends under the terms of the V4 Common Auction Conditions. As if purchased in an auction room, simply an online bidding format. This is NOT a private treaty or tender sale (NOT a 'modern method of auction'). The £5,000 security deposit paid when the auction ends is NOT a fee and will form part of the total owed on the sale of a 10% deposit and buyer's fee of £1,250 plus VAT. EXAMPLE: if you win the bid when the auction ends for £50,000, £5,000 will be taken immediately from your card and you will be invoiced for the balance of the deposit and fee which will in this example be an additional £1,500. On completion, the balance of £45,000 (plus other costs in the special conditions and standard legal costs such as stamp duty) will be paid through your conveyancer (supplied to us immediately after you win the auction) as your 10% will have been sent by us to the seller's solicitor. FAILURE TO COMPLETE WILL MEAN THE LOSS OF YOUR DEPOSIT AS WELL AS FURTHER POTENTIAL PENALTIES AS PER THE COMMON AUCTION CONDITIONS.

* Generally speaking Guide Prices are provided as an indication of each seller's minimum expectation, i.e. 'The Reserve'. They are not necessarily figures which a property will sell for and may change at any time prior to the auction. Virtually every property will be offered subject to a Reserve (a figure below which the Auctioneer cannot sell the property during the auction) which we expect will be set within the Guide Range or no more than 10% above a single figure Guide.

Lot 9 - 16 Bouch Street, Shildon, County Durham, DL4 2JW

Unconditional Online Auction Sale
Guide Price* £25,000

Loading the bidding panel...

Agreement Documents

Additional Documents

Related Documents

Virtual Tour

Video Tour Lot 6 16 Bouch Street

Make an Enquiry

Submit an enquiry and someone will be in contact shortly.

 
*  
*  
*
*
*

Share

More Properties View more

Lot 129 | End Time -

66D Norfolk Road, Littlehampton, West Sussex, BN17 5HB

Guide Price*:   £50,000
Lot 128 | End Time -

Flat 14, 386 London Road, Croydon, London, CR0 2SU

Guide Price*:   £140,000
Lot 130 | End Time -

87 Ashington Grove, Coventry, West Midlands, CV3 4DD

Guide Price*:   £280,000