Gallery   |   Floorplan    |     Video Tour    |     Map

A purpose-built, vacant, low leasehold, first-floor 430 SQFT flat with parking located in Balby, Doncaster. Ideal for investors. (Title number: SYK193245)


FOR SALE BY AUCTION: To be sold by public auction on the owner's instruction. A purpose-built, vacant, low leasehold, first-floor 430 SQFT flat with parking located in Balby, Doncaster. Ideal for investors. To be sold via online bidding auction on Friday, 14 March 2025.

Auctioneers comments: 'This Lot offers rental income potential with comparable properties nearby renting in the £600 per month range.'

Auction date
The property is to be sold by public auction on Friday, 14 March 2025 via a 2-hour online bidding window.

Description
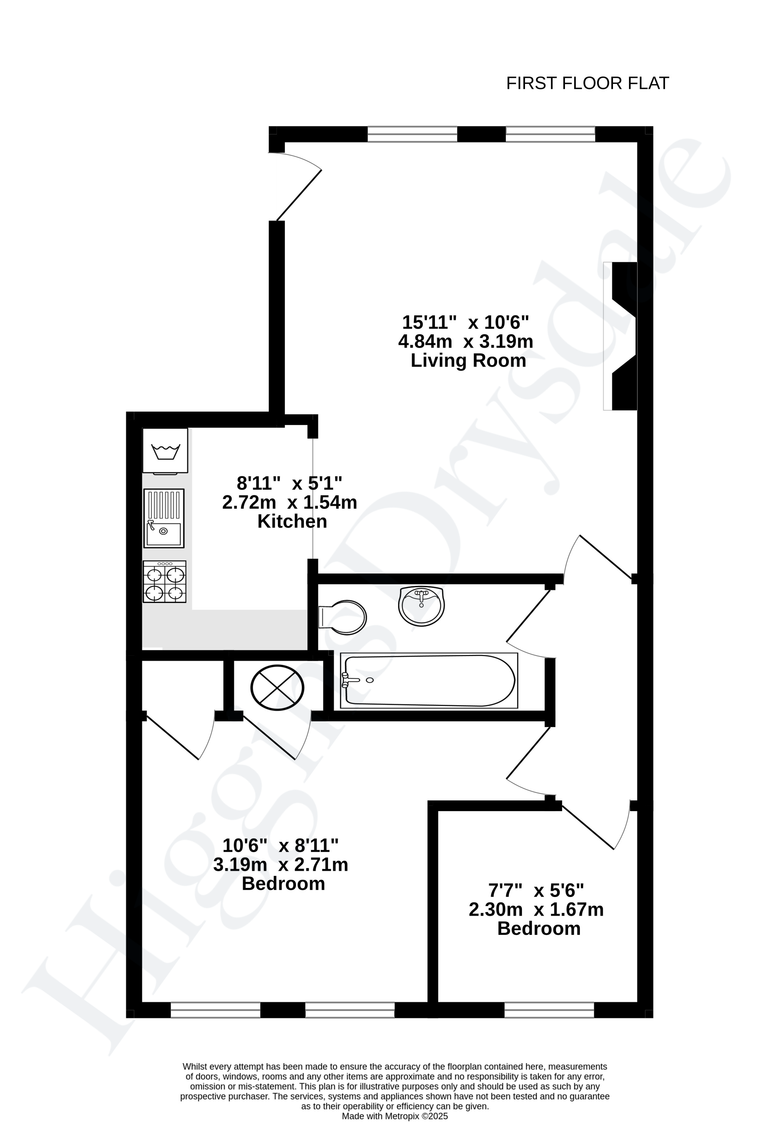
First floor, two bedrooms, 430 SQFT, parking, low lease

Location
Balby, Doncaster, 2.6 miles to Doncaster railway station

Accommodation
First floor: two bedrooms, kitchen, bathroom, living room

Outside
Allocated parking

EPC rating
E

Tenure
Leasehold with vacant possession
100 years from 1 January 1982
Ground rent: £25.00 annually
Service charge: £525.73 biannually

Local authority and council tax band
Doncaster Metropolitan Borough Council
Council tax band: A

Pre-auction bids
To make a pre-auction bid, you must be an approved bidder. Once you have set up your online bidding account, verified your ID and paid the security deposit, you can email the amount you would like to bid. The common auction conditions and special conditions apply to all pre-auction bids, and no conditions will be acceptable. Should your pre-auction bid be accepted, you will need to immediately pay the balance of the 10% deposit (min. £5,000) and all auction fees listed. The Auctioneer reserves the right to refuse any bid.

Auction fees
In addition to the 10% deposit (min. £5,000) of your winning bid, you must pay an auction buying commission of 1.5% plus VAT (min. fee of £1,900.00 plus VAT) of the purchase price and auction buying fee of £1,900.00 plus VAT. Please be aware that additional fees may be payable on completion, including disbursements in the legal pack. Check the legal pack for each lot you are interested in before bidding.

* Generally speaking Guide Prices are provided as an indication of each seller's minimum expectation, i.e. 'The Reserve'. They are not necessarily figures which a property will sell for and may change at any time prior to the auction. Virtually every property will be offered subject to a Reserve (a figure below which the Auctioneer cannot sell the property during the auction) which we expect will be set within the Guide Range or no more than 10% above a single figure Guide.

Lot 118 - 144 Arden Gate, Balby, Doncaster, South Yorkshire, DN4 9DP

Unconditional Online Auction Sale
Guide Price* £40,000

Loading the bidding panel...

Agreement Documents

Additional Documents

Related Documents

Virtual Tour

Lot 118 Video Tour

Make an Enquiry

Submit an enquiry and someone will be in contact shortly.

 
*  
*  
*
*
*

Share

More Properties View more

Lot 133 | End Time -

Flat 15 Wheatsheaf Court, Kendall Road, Colchester, Essex, CO1 2BU

Guide Price*:   £50,000
Lot 135 | End Time -

12 Glenwood Avenue, Bognor Regis, West Sussex, PO22 8BT

Guide Price*:   £290,000
Lot 130 | End Time -

87 Ashington Grove, Coventry, West Midlands, CV3 4DD

Guide Price*:   £230,000
Lot 134 | End Time -

78 Fore Street, Redruth, Cornwall, TR15 2BL

Guide Price*:   £3,000