Gallery   |   Floorplan    |     Video Tour    |     Map

A tenanted leasehold studio flat in Hartlepool with a gross annual yield of 18% (Title number: CE198467)


FOR SALE BY AUCTION: To be sold by public auction on the owners' instruction. A tenanted leasehold studio flat in Hartlepool with a gross annual yield of 18% . To be sold via online bidding on Friday, 12 April 2024.

Auctioneers comments: 'An opportunity to bid for and buy a cash flowing asset making a gross annual yield of 18% on the listing guide price.'

Auction date
The property is to be sold by public auction on Friday 12 April 2024 via a 2-hour online bidding window.

To view
The property can be viewed by booking onto one of the advertised managed block viewings. Once you have registered to bid by setting up your online bidding account, you will be emailed a Calendly link to do this. Each block viewing is strictly 30 minutes, and no ad hoc viewings will be available. In most cases, a video tour will be available.

Description
Tananted mid-floor studio flat

Location
Hartlepool, County Durham, 0.1 miles to Hartlepool railway station

Accommodation
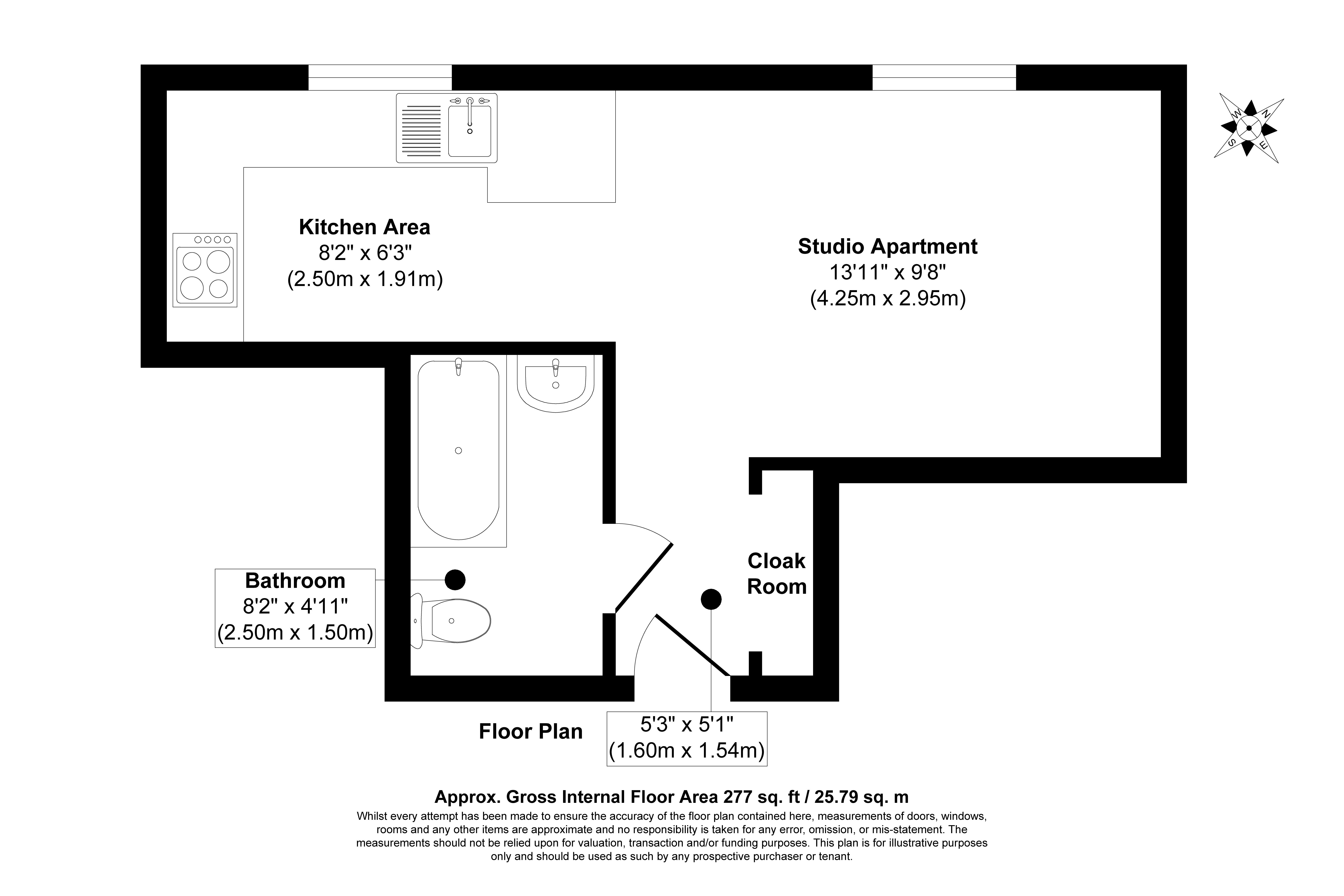
Studio area with kitchen, bathroom, cloakroom

Outside
Communal entrance

EPC rating
To be confirmed

Tenure
Leasehold
125 years from 1 January 2007

Local authority and council tax band
Hartlepool Borough Council
Council tax band: A

Pre-auction bids
To make a pre-auction bid, you must be an approved bidder. Once you have set up your online bidding account, verified your ID and paid the security deposit, you can email the amount you would like to bid. The common auction conditions and special conditions apply to all pre-auction bids, and no conditions will be acceptable. Should your pre-auction bid be accepted, you will need to immediately pay the balance of the 10% deposit (min. £5,000) and all auction fees listed. The Auctioneer reserves the right to refuse any bid.

Auction fees
In addition to the 10% deposit (min. £5,000) of your winning bid, you must pay an auction buying commission of 2% plus VAT (min. fee of £2,100 plus VAT) of the purchase price and auction buying fee of £1,900 plus VAT. Please be aware that additional fees may be payable on completion, including disbursements in the legal pack. Check the legal pack for each lot you are interested in before bidding.

* Generally speaking Guide Prices are provided as an indication of each seller's minimum expectation, i.e. 'The Reserve'. They are not necessarily figures which a property will sell for and may change at any time prior to the auction. Virtually every property will be offered subject to a Reserve (a figure below which the Auctioneer cannot sell the property during the auction) which we expect will be set within the Guide Range or no more than 10% above a single figure Guide.

Lot 100 - 5 Tower Chamber Apartments Tower House, 5 Tower Street, Hartlepool, Cleveland, TS24 7HH

Unconditional Online Auction Sale
Guide Price* £20,000

Loading the bidding panel...

Agreement Documents

Additional Documents

Related Documents

Virtual Tour

Lot 100 Video Tour

Make an Enquiry

Submit an enquiry and someone will be in contact shortly.

 
*  
*  
*
*
*

Share

More Properties View more

Lot 133 | End Time -

Flat 15 Wheatsheaf Court, Kendall Road, Colchester, Essex, CO1 2BU

Guide Price*:   £50,000
Lot 135 | End Time -

12 Glenwood Avenue, Bognor Regis, West Sussex, PO22 8BT

Guide Price*:   £290,000
Lot 130 | End Time -

87 Ashington Grove, Coventry, West Midlands, CV3 4DD

Guide Price*:   £230,000