Gallery   |   Floorplan    |     Video Tour    |     Map

A two-bedroom 904 SQFT detached house. Freehold, vacant and in need of modernisation. (Title number: SX23852)


SOLD AT AUCTION FOR £254,000: To be sold by public auction on the instruction of the attorney. A two bedroom detached house, freehold, and in need of modernisation. Vacant and ideal for investors. To be sold via online bidding on Friday, 1 March 2024

Auctioneers comments: 'This Lot offers an opportunity to buy a 904 SQFT, vacant, two-bedroom detached house in need of modernisation.'

Auction date
The property is to be sold by public auction on Friday 1 March 2024 via a 2-hour online bidding window.

To view
The property can be viewed by booking onto one of the advertised managed block viewings. Once you have registered to bid by setting up your online bidding account, you will be emailed a Calendly link to do this. Each block viewing is strictly 30 minutes, and no ad hoc viewings will be

Description
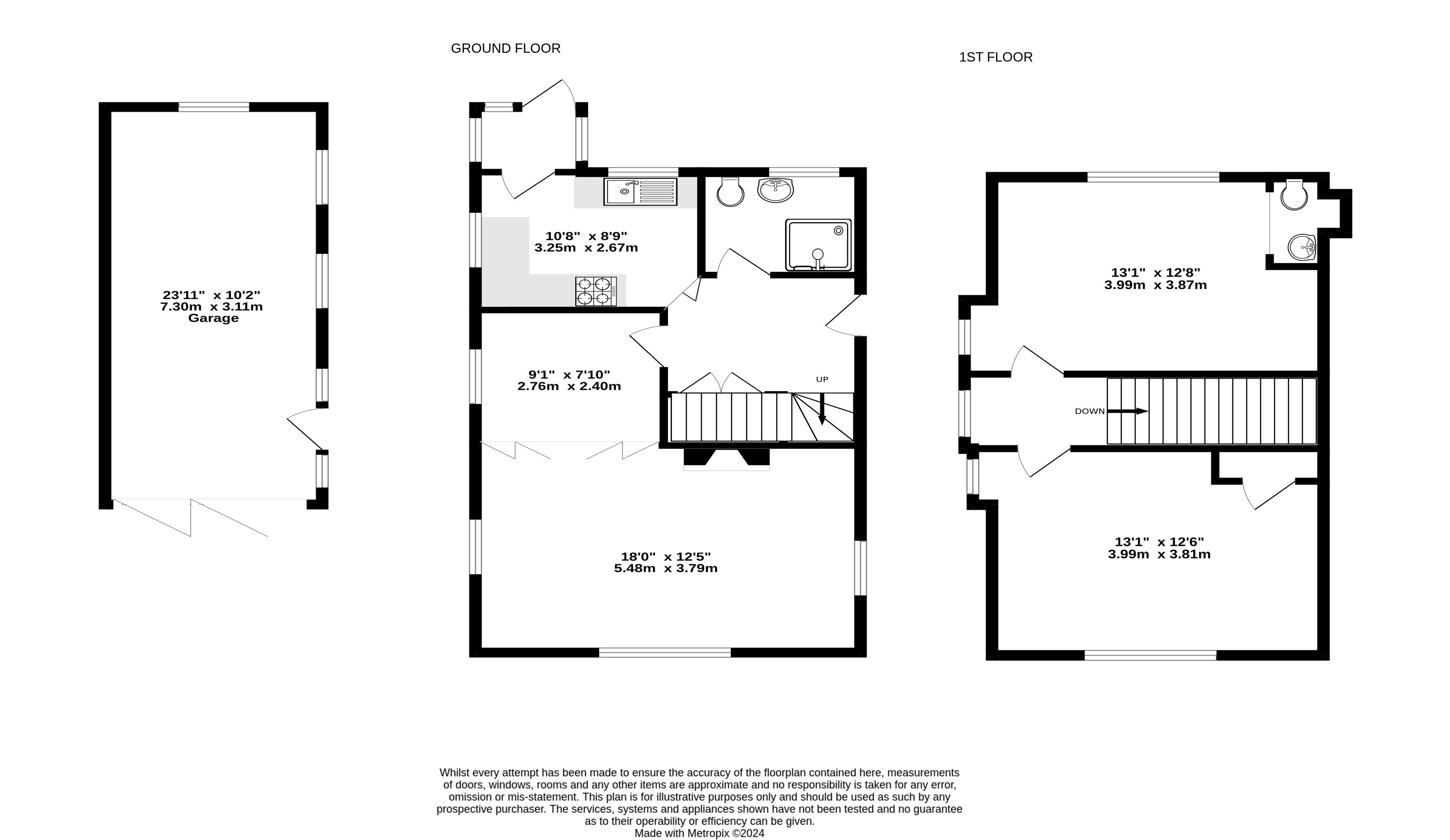
Two bedrooms, vacant, 904 SQFT, detached house, freehold, detached garage

Location
Bognor Regis, West Sussex, next to The Regis School and 1.0 mile to the Bognor Regis railway station

Accommodation
Ground floor: living room, dining room, kitchen, shower room
First floor: two bedrooms

Outside
Front garden, drive, rear garden, detached garage

EPC rating
C

Tenure
Freehold with vacant possession

Local authority and council tax band
West Sussex County Council and Arun District Council
Council tax band: D

Pre-auction bids
To make a pre-auction bid, you must be an approved bidder. Once you have set up your online bidding account, verified your ID and paid the security deposit, you can email the amount you would like to bid. The common auction conditions and special conditions apply to all pre-auction bids, and no conditions will be acceptable. Should your pre-auction bid be accepted, you will need to immediately pay the balance of the 10% deposit (min. £5,000) and all auction fees listed. The Auctioneer reserves the right to refuse any bid.

Auction fees
In addition to the 10% deposit (min. £5,000) of your winning bid, you must pay an auction buying commission of 1.75% plus VAT (min. fee of £1,750 plus VAT) of the purchase price and auction buying fee of £1,900 plus VAT. Please be aware that additional fees may be payable on completion, including disbursements in the legal pack. Check the legal pack for each lot you are interested in before bidding.

* Generally speaking Guide Prices are provided as an indication of each seller's minimum expectation, i.e. 'The Reserve'. They are not necessarily figures which a property will sell for and may change at any time prior to the auction. Virtually every property will be offered subject to a Reserve (a figure below which the Auctioneer cannot sell the property during the auction) which we expect will be set within the Guide Range or no more than 10% above a single figure Guide.

Lot 98 - 26 Pevensey Road, Bognor Regis, West Sussex, PO21 5NU

Unconditional Online Auction Sale
Guide Price* £210,000

Loading the bidding panel...

Agreement Documents

Additional Documents

Related Documents

Virtual Tour

Lot 98 Video Tour

Make an Enquiry

Submit an enquiry and someone will be in contact shortly.

 
*  
*  
*
*
*

Share

More Properties View more

Lot 133 | End Time -

Flat 15 Wheatsheaf Court, Kendall Road, Colchester, Essex, CO1 2BU

Guide Price*:   £50,000
Lot 135 | End Time -

12 Glenwood Avenue, Bognor Regis, West Sussex, PO22 8BT

Guide Price*:   £290,000
Lot 130 | End Time -

87 Ashington Grove, Coventry, West Midlands, CV3 4DD

Guide Price*:   £230,000
Lot 134 | End Time -

78 Fore Street, Redruth, Cornwall, TR15 2BL

Guide Price*:   £3,000